
CAD Symbols and GD&T (Autodesk product toolbars)
Presentation
•
Education
•
9th - 12th Grade
•
Practice Problem
•
Hard
Melissa Nunnink
Used 1+ times
FREE Resource
7 Slides • 0 Questions
1
CAD Symbols/Geometric Dimensioning and Tolerancing (GD&T)
By Melissa Nunnink
2
Use these as a starting point.
General Symbols
3
4
These should make sense intuitively, but if not, please look up the individual terms for clarification.
Basic Inventor Toolbar
5
This is just the basics, and another expanded is on the next slide.
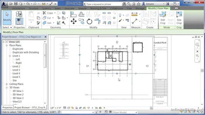
Revit Toolbar
6
This is commonly used to edit or make projects in AIA/TSA products.
Revit Modify Tab
7
Fusion Toolbar
Above is the basic toolbar, and to the left you'll find a "modify" view.
CAD Symbols/Geometric Dimensioning and Tolerancing (GD&T)
By Melissa Nunnink
Show answer
Auto Play
Slide 1 / 7
SLIDE
Similar Resources on Wayground
3 questions
WU 9/11 P.371#77
Presentation
•
9th - 12th Grade
7 questions
Food Mall - Induction Module 1
Presentation
•
KG - University
6 questions
Example
Presentation
•
KG - University
3 questions
Bell Ringer
Presentation
•
9th - 12th Grade
2 questions
Bell Ringer
Presentation
•
9th - 12th Grade
6 questions
Tc. Syada Farm: Quizz
Presentation
•
KG
1 questions
Post Test X-KIN: Recount Text
Presentation
•
9th - 12th Grade
2 questions
Bell Ringer
Presentation
•
9th - 12th Grade
Popular Resources on Wayground
10 questions
Fire Safety Quiz
Quiz
•
12th Grade
20 questions
Equivalent Fractions
Quiz
•
3rd Grade
20 questions
Main Idea and Details
Quiz
•
5th Grade
20 questions
Context Clues
Quiz
•
6th Grade
20 questions
Inferences
Quiz
•
4th Grade
36 questions
6th Grade Math STAAR Review
Quiz
•
6th Grade
19 questions
Classifying Quadrilaterals
Quiz
•
3rd Grade
12 questions
What makes Nebraska's government unique?
Quiz
•
4th - 5th Grade